About 2 Hageman Court
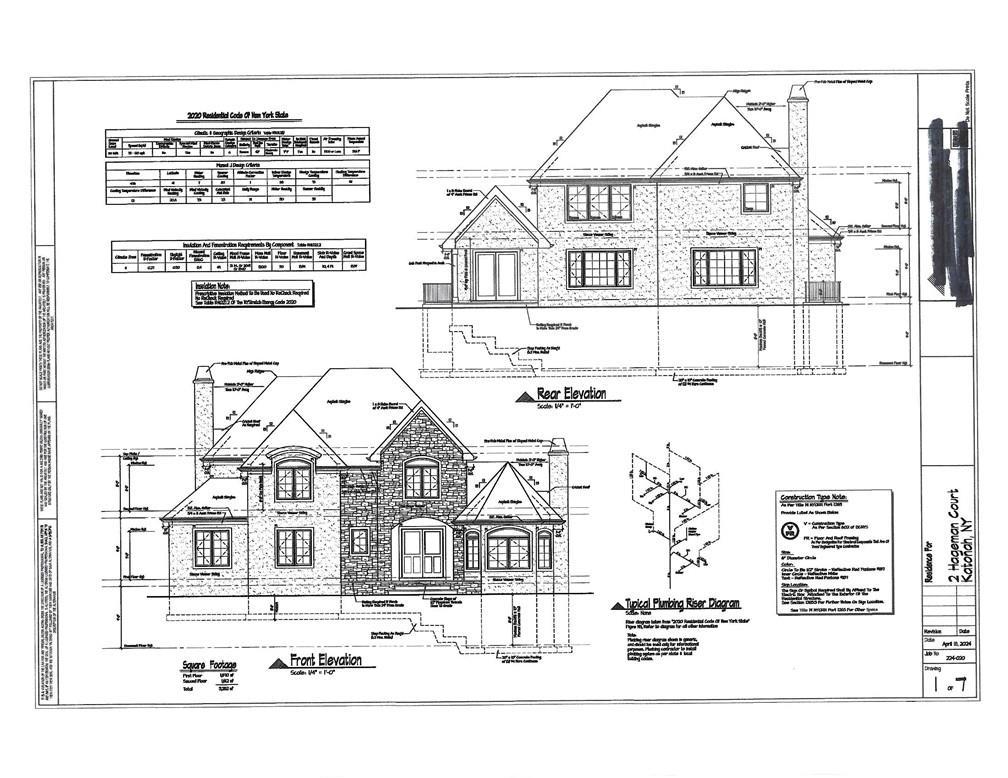
Building permit is issued. Site has been cleared. Owner will build home for you or bring your own builder. Current house plans are for a 3200 sq' home with 3 bedrooms but lives like a 4 with the upstairs den. There are 3 full bathrooms and 1 half bathroom. If more square footage is needed the basement can be finished. Since building hasn't started it is easy enough to have a different house designed to meet your personal needs. The lot is large enough and has the required set backs based on preliminary research to have a pool but this will require a separate permit. Construction can begin as early as the day you close. Build the last house in the 11 lot subdivision located on a private culdesac. The home is located a short distance from Katonah village and within walking distant to numerous trails and parks. Don't walk property without an appointment.
Features of 2 Hageman Court
| MLS® # | H6276054 |
|---|---|
| Price | $525,000 |
| Sold Price | $400,000 |
| Date Sold | January 22nd, 2025 |
| Bathrooms | 0.00 |
| Acres | 2.25 |
| Taxes | $2,362 |
| Type | Land |
| Status | Closed |
Community Information
| Address | 2 Hageman Court |
|---|---|
| City | Katonah |
| County | Westchester County |
| State | NY |
| Zip Code | 10536 |
| Adult 55+ Community | No |
Amenities
| Utilities | Underground Utilities, Trash Collection Private |
|---|---|
| Is Waterfront | No |
| Has Pool | No |
Interior
| Has Basement | No |
|---|---|
| Fireplace | No |
School Information
| District | Somers |
|---|---|
| Elementary | Primrose |
| Middle | Somers Middle School |
| High | Somers Senior High School |
Additional Information
| Date Listed | September 11th, 2024 |
|---|---|
| Days on Market | 133 |
| Short Sale | No |
| RE / Bank Owned | No |
Listing Details
| Office | Maxwell Jacobs, Inc. |
|---|
